Меню
ГлавнаяПравила землепользования и застройкиПравила землепользования и застройки с. Аркаулово, д. Бешевлярово, д. Куселярово, д. Махмутово, д. Яубуляково сельского поселения Аркауловский сельсовет муниципального района Салаватский район Республики Башкортостан

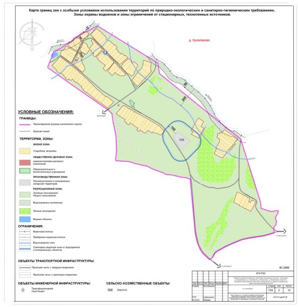
Правила землепользования и застройки с. Аркаулово, д. Бешевлярово, д. Куселярово, д. Махмутово, д. Яубуляково сельского поселения Аркауловский сельсовет муниципального района Салаватский район Республики Башкортостан